Horus City

Квартира 2 комнатая

Общая площадь:

71.88м²

Номер блока:

Блок 12

Этаж:

P

Количество комнат:

2 комнатая

Ванная комната

2 ванные

Статус:

Доступен

Теплоизолированные окна с 5 камерами и LOW-E

Теплые полы по всей площади квартиры

Конденсационный котел и умный термостат

Двойные стены с тепло- и звукоизоляцией

Умные краны с датчиками протечки воды

Cистема умного дома

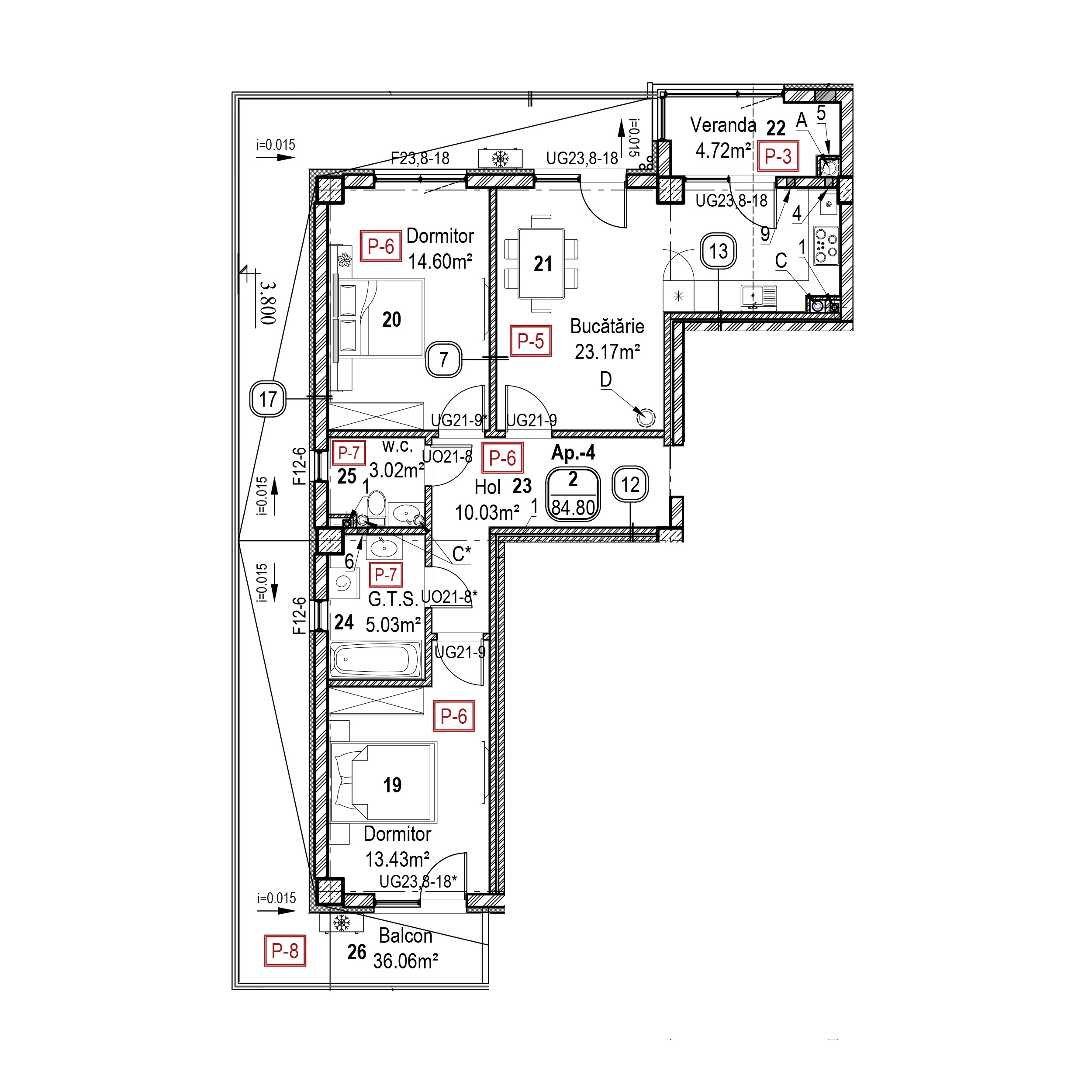
Планировка

Квартира 71.88м²,
с гостиной/балконом/лоджией.

Звони по номеру 022 444 555
и бронируй идеальную квартиру для себя и своей семьи.

Расположение

Спроектирована для комфорта и доступности.