Horus City

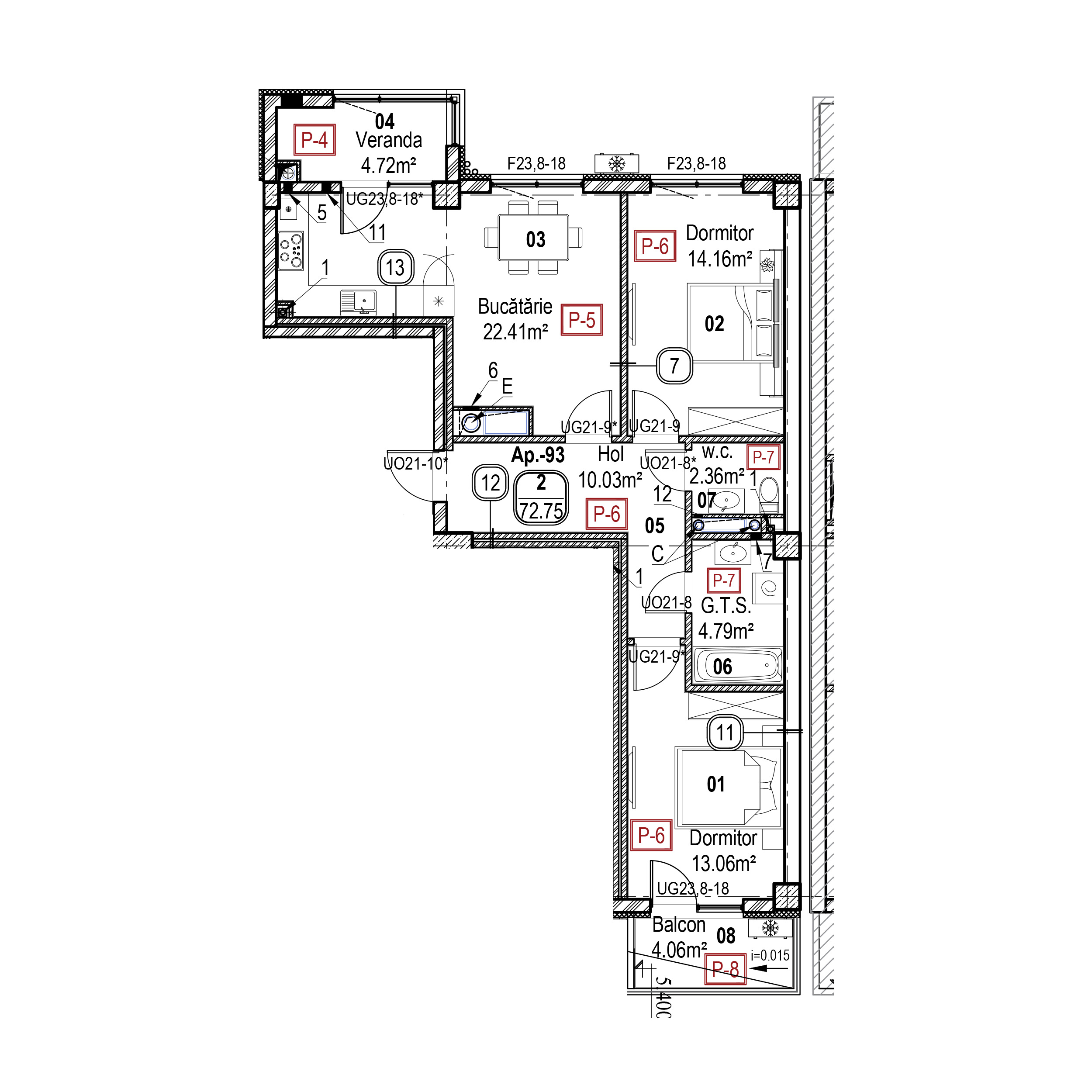
Apartament cu 2 camere

Suprafața totală:

72.75m²

Nr blocului:

Bloc 2

Etaj:

1

Nr camere:

2 camere

Balcon

1 balcon

Bloc sanitar

2 băi

Statut:

Vândut

Geamuri termoizolate cu 5 camere și LOW-E

Podele calde pe toată suprafața apartamentului

Cazan pe condens și termostat inteligent

Pereți dubli cu izolație termică și fonică

Clapetă inteligentă cu senzori de scurgere a apei

Sistem Smart Home

Planificarea

Apartament de 72.75м²,
cu living/balcon/logie.

Sună la 022 444 555
și rezervează apartamentul perfect pentru tine și familia ta.

Amplasare

Soluții adaptate pentru confort zilnic și mobilitate fără bariere.

2024 © Copyright. Toate drepturile rezervate