Horus City

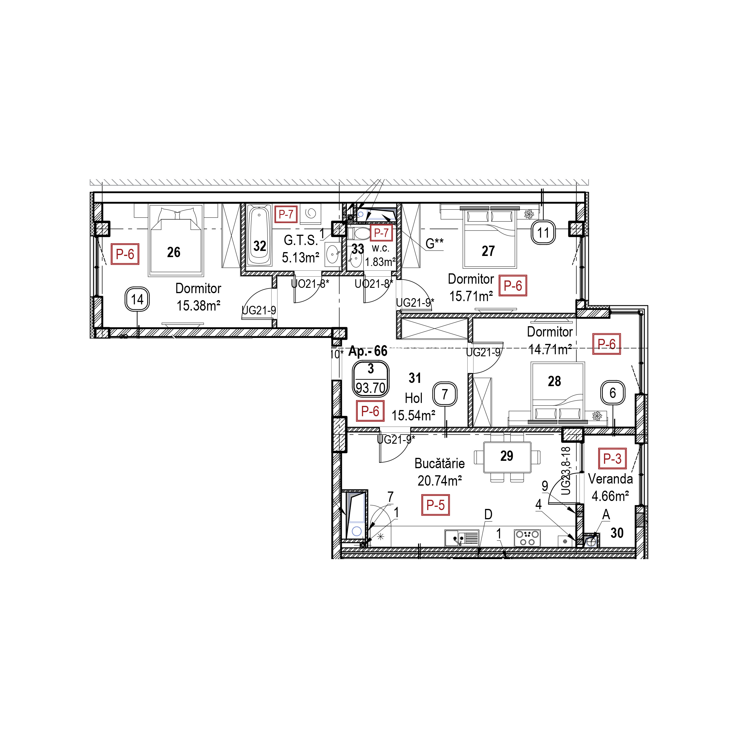
Apartament cu 3 camere

Suprafața totală:

93.7m²

Nr blocului:

Bloc 1

Etaj:

6

Nr camere:

3 camere

Bloc sanitar

2 băi

Statut:

Vândut

Geamuri termoizolate cu 5 camere și LOW-E

Podele calde pe toată suprafața apartamentului

Cazan pe condens și termostat inteligent

Pereți dubli cu izolație termică și fonică

Clapetă inteligentă cu senzori de scurgere a apei

Sistem Smart Home

Planificarea

Apartament de 93.7м²,
cu living/balcon/logie.

Sună la 022 444 555
și rezervează apartamentul perfect pentru tine și familia ta.

Amplasare

Soluții adaptate pentru confort zilnic și mobilitate fără bariere.

2024 © Copyright. Toate drepturile rezervate